駅徒歩1分で眺望も♫
SALE
マンション
| 物件価格 | 成約 |
| 所在地 | 神戸市須磨区平田町2-3-22 |
| 交通 | 地下鉄 板宿駅徒歩1分 山電 板宿駅徒歩1分 |
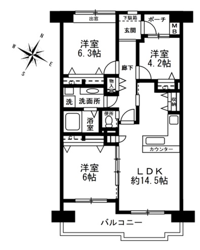
| 間取り | 3LDK |
| 専有面積 | 74㎡ |
| 築年月 | 昭和63年2月 |
板宿駅から徒歩1分で板宿グリーンタウン。
マンション目の前には、バス停。
徒歩1分でアーケードのある商店街。
本当に便利な立地です。
JR鷹取駅・新長田駅まで、マンション目の前のバス停から移動できます。
もちろん、徒歩でも・・。
南側はフラットなので、新長田駅までおおよそ15分程度。
板宿商店街は、今でも魚屋さんや八百屋さんが大活躍しています。
煮物も、スーパーで売られている物より、美味しそうに見えました。
消費税なし本物の100円均一のお店も人気です。
老舗の和菓子屋さん。 パン屋さん。
惣菜屋さん。何でも揃います。
4月の桜のシーズンには、多くの桜の木が美しい姿を見せてくれます。
※現在、心を込めてリフォーム中です。
キッチン・浴室・洗面・クロス張り替えetc綺麗になります!
旧法借地権です。
-
板宿駅からすぐ。商店街横にマンションです。
-
マンション南は大きな道路。5階からの眺め。
遮る建物も少ないので爽やかな風と空の色。
南側道路は大きい割に、車の音はあまり感じませんでした。 -
-
-
-
板宿小学校まで約260m
飛松中学校まで約1Km -
バルコニーから180度
サムネイル画像をクリックすると
画像が拡大されます
物件概要
| 物件名 | 駅徒歩1分で眺望も♫ | ||
| 価格 | 成約 | ||
| 所在地 | 神戸市須磨区平田町2-3-22 | ||
| 交通 | 地下鉄 板宿駅徒歩1分 山電 板宿駅徒歩1分 | ||
| 所在階 | 5階 | 土地面積 | 1915.91㎡ |
| 敷地の権利形態 | 借地権 | 持分割合 | |
| 構造・階数 | SRC造陸屋根14階建地下1階 | 専有面積 | 74㎡ |
| バルコニー面積 | 11.63㎡ | バルコニー方向 | 南 |
| 間取り | 3LDK | 築年月 | 昭和63年2月 |
| 総戸数 | 90戸 | 施工会社 | |
| 管理会社 | 住友不動産建物サービス株式会社 | 管理形態 | 全部委託 |
| 管理費 | 13,350円 | 修繕積立金 | 6,020円 |
| その他費用 | 地代22,509円(3ヶ月) | 駐車場 | 無 |
| 設備 | 電気 上下水道 都市ガス | 設備備考 | |
| 都市計画 | 市街化区域 | 用途地域 | 商業地域 |
| 現況 | リフォーム中 | 引渡時期 | 2019年5月末頃 |
| 取引態様 | 仲介 | ||
| 学校区 | 板宿小学校 飛松中学校 | ||
| 備考 | |||
| 物件名 | 駅徒歩1分で眺望も♫ | ||
| 価格 | 成約 | ||
| 所在地 | 神戸市須磨区平田町2-3-22 | ||
| 交通 | 地下鉄 板宿駅徒歩1分 山電 板宿駅徒歩1分 | ||
| 所在階 | 5階 | ||
| 土地面積 | 1915.91㎡ | ||
| 敷地の権利形態 | 借地権 | ||
| 持分割合 | |||
| 構造・階数 | SRC造陸屋根14階建地下1階 | ||
| 専有面積 | 74㎡ | ||
| バルコニー面積 | 11.63㎡ | ||
| バルコニー方向 | 南 | ||
| 間取り | 3LDK | ||
| 築年月 | 昭和63年2月 | ||
| 総戸数 | 90戸 | ||
| 施工会社 | |||
| 管理会社 | 住友不動産建物サービス株式会社 | ||
| 管理形態 | 全部委託 | ||
| 管理費 | 13,350円 | ||
| 修繕積立金 | 6,020円 | ||
| その他費用 | 地代22,509円(3ヶ月) | ||
| 駐車場 | 無 | ||
| 設備 | 電気 上下水道 都市ガス | ||
| 設備備考 | |||
| 都市計画 | 市街化区域 | ||
| 用途地域 | 商業地域 | ||
| 現況 | リフォーム中 | ||
| 引渡時期 | 2019年5月末頃 | ||
| 取引態様 | 仲介 | ||
| 学校区 | 板宿小学校 飛松中学校 | ||
| 備考 | |||
周辺地図
地図上に表示される場所が実際の所在地とは異なる場合や最新情報に更新されていない場合がございます。ご了承ください。
所在地の確認は、ご連絡下さいませ。
●成約済あるいは販売(募集)中止になる場合は、ご容赦下さい。
●物件に関する情報(間取り・方位)は実際と異なる場合がございますので、その場合は現地を優先いたします。
●学校区は町名を元に記載しておりますが、番地等によって変更になる場合があります。教育委員会等にてご確認ください。


